2861 Armentrout Dr

2861 Armentrout Dr | Concord, NC 28025

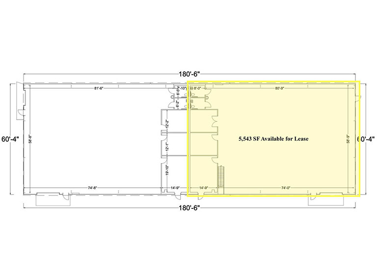
This ±5,543 SF suite offers a functional mix of office and warehouse space ideal for service, light industrial, or distribution users. The space includes a dedicated office area suitable for reception and administrative functions, a private restroom, and clear‑span warehouse space for storage, production, or light assembly. One grade‑level drive‑in door provides convenient access for vans and box trucks, allowing efficient loading and unloading directly into the warehouse. The layout is designed for operational efficiency and can accommodate a variety of business types seeking practical, no‑frills industrial space.

  • ±5,400 SF flex/industrial suite (configurable office/warehouse mix)
  • 18′ clear height
  • One grade‑level drive‑in door for easy van and box‑truck access
  • Dedicated office area suitable for reception and administrative use
  • Private in‑suite restrooms
  • Clear‑span warehouse space for storage, production, or light assembly
  • Efficient layout for service, contractor, or light industrial users
  • Located in a multi‑tenant industrial building in Concord, NC within the Charlotte MSA
  • Convenient access to US‑601, NC‑49, and I‑85 for regional connectivity
  • Parking lot to be newly paved

Nick Melfi

View Bio

Vincenzo Verdino

View Bio

Contact Brokers